Ugrás a tartalomra
Felhasználói fiók menüje
Bejelentkezés
Magyar Kórházszövetség
Rendezvények
Keresés
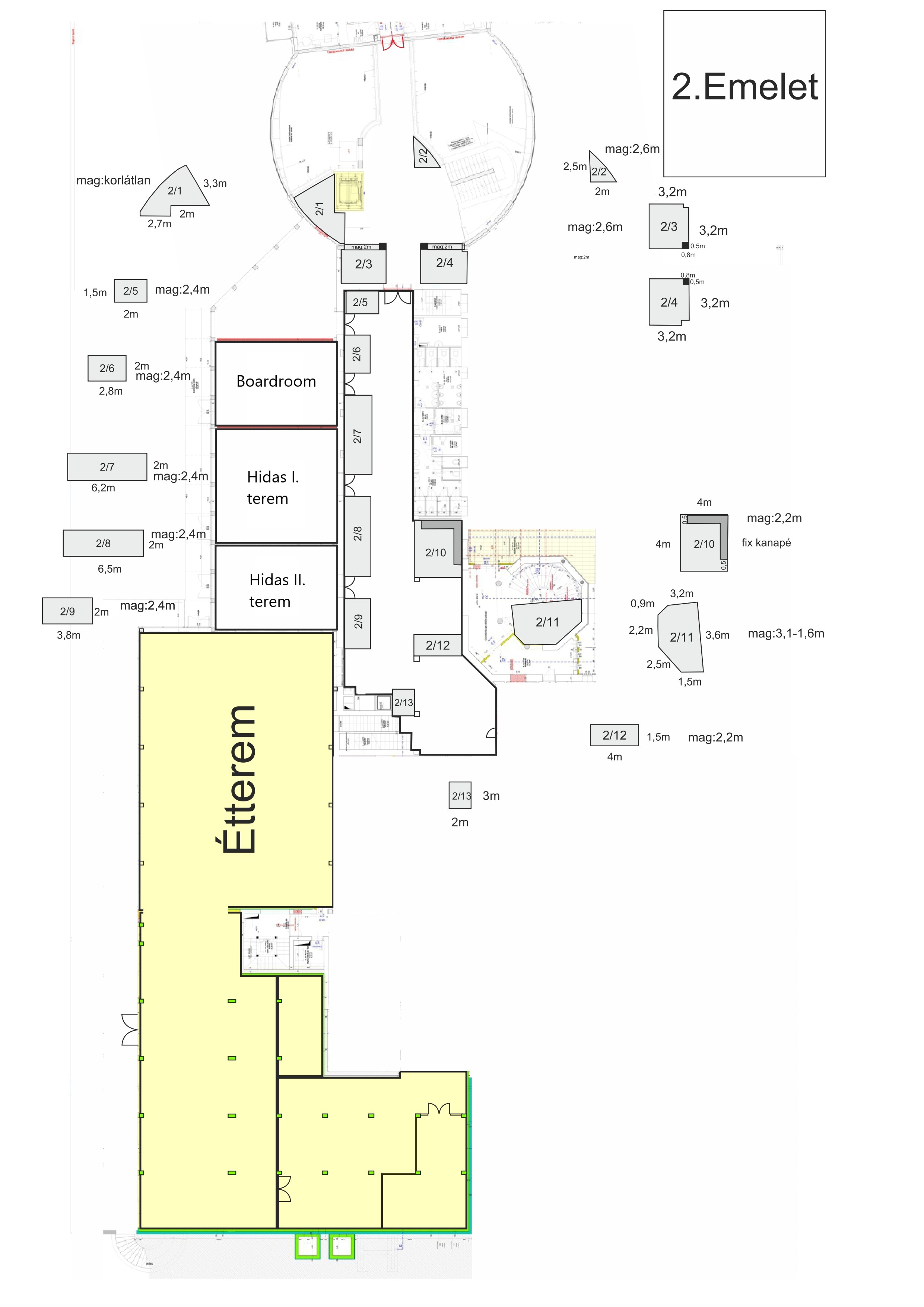
2. Emelet - Hotel Residence Ózon